Wykaz z dnia 24.03.2021 r.
obejmujący lokale przeznaczone do oddania w dzierżawę w drodze przetargu
| Lp. | Oznaczenie | Powierzchnia lokalu (m2) | Przeznaczenie lokalu i sposób zagospodarowania | Wysokość opłat z tytułu dzierżawy (zł) | Termin wnoszenia opłat | Formaużytkowania | ||
| Kw | Nr działki | Położenielokalu | ||||||
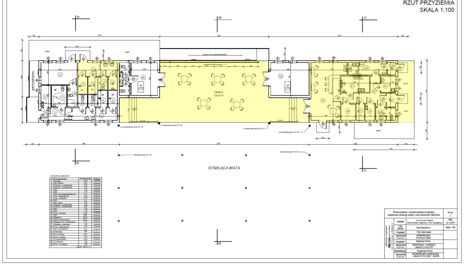
| 1. | BY2T/00015751/8 | 1/34 | Kamień Krajeński,ul. Jeziorna | 218,47 | Część budynku amfiteatru z przeznaczeniem na usługi gastronomiczne | 1 250,00 zł + VAT | Czynsz miesięczny płatny do 10-go każdego miesiąca | dzierżawa od 1 czerwca 2021 r. do 15 października 2021 r. |
Pomieszczenie lokalowe usytuowane jest na parterze budynku, obejmuje pomieszczenia ozn. jako nr 11-15, 19-29 oraz taras – zgodnie z załącznikiem graficznym do niniejszego wykazu. Budynek wyposażony w instalację: elektryczną, wodno-kanalizacyjną, wentylacja mechaniczna, internet – ogólnodostępny. Ogrzewanie we własnym zakresie.
Czynsz dzierżawny obowiązuje w okresie dzierżawy na warunkach zawartej umowy i nie podlega aktualizacji.
Termin zagospodarowania nieruchomości – nie dotyczy
Cena nieruchomości – nie dotyczy
Wysokość stawek procentowych opłat z tytułu użytkowania wieczystego – nie dotyczy
Termin złożenia wniosku przez osoby, którym przysługuje pierwszeństwo
w nabyciu nieruchomości na podstawie art. 34 ust. 1 pkt 1 i pkt 2 – nie dotyczy
Wywieszono od 24.03.2021 r. do 14.04.2021 r.
Załączniki
| załącznik nr 1 | dodany: 09:53, 24.03.2021 | przez: Marta Husarek |
Informacje
| wytworzono: | data: 08:38 24.03.2021 | przez: Marta Husarek | |
| wprowadzono: | data: 08:39, 24.03.2021 | przez: Marta Husarek | |
| udostępniono: | data: 08:39, 24.03.2021 | przez: Marta Husarek | |
| zmodyfikowano: | data: 09:53, 24.03.2021 | przez: Marta Husarek | |
| osoba odpowiedzialna: | Marta Husarek | ||
| podmiot udostępniający: | Urząd Miejski w Kamieniu Krajeńskim | ||
Rejestr zmian
| edytowane: | data: 09:53, 24.03.2021 | przez: Marta Husarek | Wykaz nieruchomości przeznaczonych do oddania w dzierżawę - lokal użytkowy dz. nr 1/34, obręb Kamień Krajeński | |
| utworzono: | data: 08:39, 24.03.2021 | przez: Marta Husarek | Wykaz nieruchomości przeznaczonych do oddania w dzierżawę - lokal użytkowy dz. nr 1/34, obręb Kamień Krajeński |
