Wykaz lokali przeznaczonych do dzierżawy w 2019 roku
| Lp. | Oznaczenie | Powierzchnia lokalu (m2) | Przeznaczenie lokalu i sposób zagospodarowania | Minimalna wysokość opłat z tytułu dzierżawy na miesiąc (zł) | Termin wnoszenia opłat | Zasady aktualizacji opłat | Forma
użytkowania |
||
| Kw | Nr
działki |
Położenie
lokalu |
|||||||
| 1. | BY2T/00015751/8 | 1/34 | Kamień Krajeński,
ul. Jeziorna |
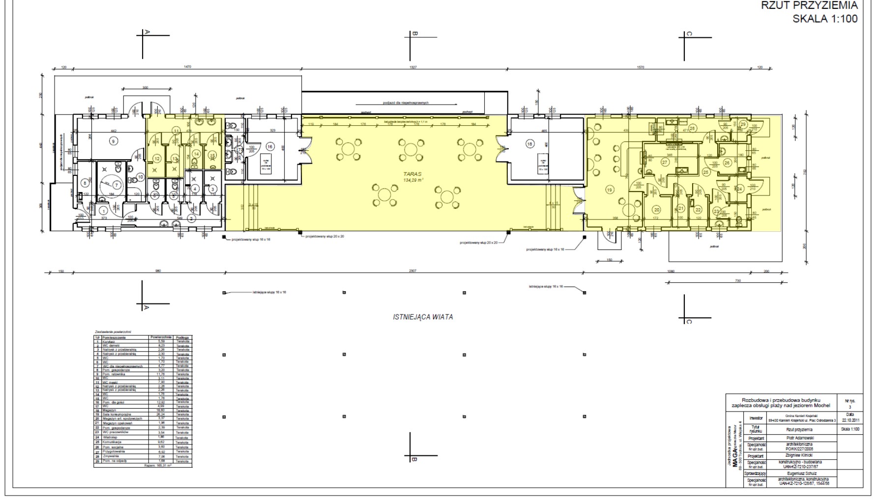
218,47 | Część budynku amfiteatru z przeznaczeniem na usługi gastronomiczne | 1 000,00 zł + VAT | Do 10-go każdego miesiąca | Czynsz dzierżawy podlega waloryzacji nie częściej niż raz w roku o wskaźnik wzrostu cen towarów i usług konsumpcyjnych ogłoszony przez GUS ze skutkiem od 1 stycznia kolejnego roku trwania umowy.
Czynsz dzierżawny może ulec zmianie w przypadku zmiany wysokości stawek czynszu ustalonego Zarządzeniem Burmistrza Kamienia Krajeńskiego. |
Dzierżawa na 3 lata |
Pomieszczenie lokalowe usytuowane jest na parterze budynku, obejmuje pomieszczenia oznaczone nr 11-15, 19-29 oraz taras – zgodnie z załącznikiem graficznym do niniejszego wykazu. Budynek wyposażony w instalację: elektryczną, wodno-kanalizacyjną, wentylacja mechaniczna, internet – ogólnodostępny. Ogrzewanie we własnym zakresie.
Termin zagospodarowania nieruchomości – nie dotyczy
Cena nieruchomości – nie dotyczy
Wysokość stawek procentowych opłat z tytułu użytkowania wieczystego – nie dotyczy
Termin złożenia wniosku przez osoby, którym przysługuje pierwszeństwo
w nabyciu nieruchomości na podstawie art. 34 ust. 1 pkt 1 i pkt 2 – nie dotyczy
Wywieszono od 6.11.2019 r. do 27.11.2019 r.
Załączniki
| mapa gotowa | dodany: 10:08, 06.11.2019 | przez: Marta Husarek |
Informacje
| wytworzono: | data: 09:58 06.11.2019 | przez: Marta Husarek | |
| wprowadzono: | data: 10:09, 06.11.2019 | przez: Marta Husarek | |
| udostępniono: | data: 10:09, 06.11.2019 | przez: Marta Husarek | |
| zmodyfikowano: | data: 10:09, 06.11.2019 | przez: Marta Husarek | |
| osoba odpowiedzialna: | Marta Husarek | ||
| podmiot udostępniający: | Urząd Miejski w Kamieniu Krajeńskim | ||
Rejestr zmian
| utworzono: | data: 10:09, 06.11.2019 | przez: Marta Husarek | wykaz lokali przeznaczonych do dzierżawy w roku 2019 - pomieszczenia lokalowe w budynku amfiteatru ul. Jeziorna w Kamieniu Krajeńskim. |
