Burmistrz Kamienia Krajeńskiego
ogłasza I przetarg ustny nieograniczony na dzierżawę lokalu użytkowego
| Lp. | Położenie | Oznaczenie nieruchomości | Powierzchnia lokalu | Przeznaczenie i sposób zagospodarowania | Cena wywoławcza | Termin wnoszenia opłat | Wadium | Forma użytkowania | ||
| Nr KW | Nr działki | Nr obrębu | ||||||||
| 1. | Kamień Krajeński
ul. Jeziorna |
BY2T/00015751/8 | 1/34 | 0001 | 218,47 m2 | Część budynku amfiteatru z przeznaczeniem na usługi gastronomiczne | 1 250,00 zł
+ VAT |
Czynsz miesięczny płatny do 10-go każdego miesiąca | 200,00 | dzierżawa od 1 czerwca 2021 r. do 15 października 2021 |
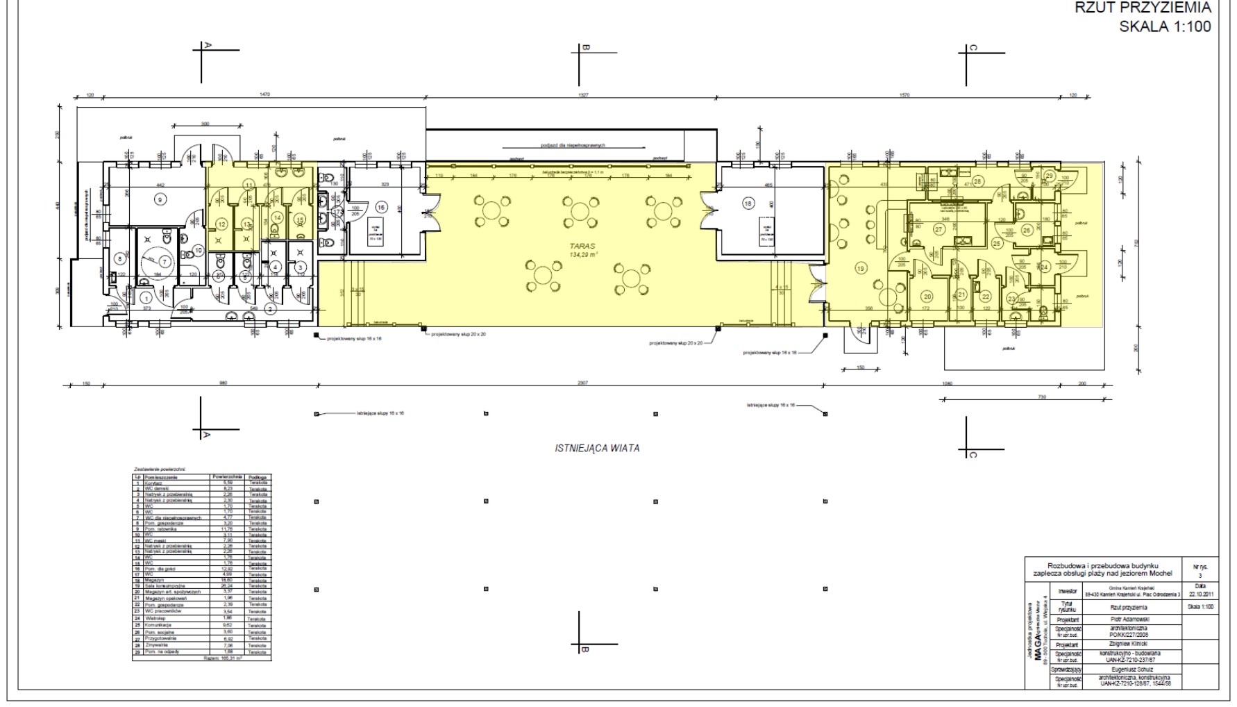
Przedmiotem przetargu jest dzierżawa lokalu użytkowego składającego się z pomieszczeń usytuowanych na parterze budynku, oznaczonych nr 11-15, 19-29 oraz jako taras – zgodnie z załącznikiem graficznym, z przeznaczeniem na prowadzenie usług gastronomiczno-rozrywkowych.
Budynek wyposażony w instalację: elektryczna, wodno-kanalizacyjna, wentylacja mechaniczna, internet – ogólnodostępny. Ogrzewanie – brak.
Przetarg odbędzie się 18 maja 2021 roku o godz. 1100 w Urzędzie Miejskim w Kamieniu Krajeńskim w sali nr 30 (II piętro). Wadium należy wpłacić w pieniądzu na konto Urzędu Miejskiego Nr 30 8162 0003 0000 9292 2000 0180 Bank Spółdzielczy Więcbork najpóźniej do dnia 13 maja 2021 roku (włącznie).
Szczegółowych informacji można uzyskać w Urzędzie Miejskim w Kamieniu Krajeńskim (biuro nr 24) lub telefonicznie pod numerem (52) 389-45-32 w godzinach urzędowania. Osoby zainteresowane udziałem w przetargu winny zapoznać się z projektem umowy dzierżawy – w terminie do dnia 13 maja 2021 r. Projekt umowy dzierżawy dostępny jest w Urzędzie Miejskim w Kamieniu Krajeńskim (biuro nr 24).
Wpłacone wadium przez uczestnika, który wygra przetarg zalicza się na poczet pierwszego czynszu za dzierżawę. Pozostałym uczestnikom przetargu wadium zwraca się niezwłocznie jednak nie później niż przed upływem 3 dni od dnia zakończenia przetargu, na podany przez uczestnika rachunek bankowy. W przypadku uchylenia się przez uczestnika, który wygrał przetarg od zawarcia umowy dzierżawy, wpłacone przez niego wadium przepada.
Ogłoszenie niniejsze wywieszone zostaje na tablicy ogłoszeń w budynku Urzędu Miejskiego w Kamieniu Krajeńskim. oraz zamieszczone na stronie internetowej: https://mst-kamien-krajenski.rbip.mojregion.info/ i https://portal.kamienkr.pl/.
Burmistrz Kamienia Krajeńskiego zastrzega sobie prawo do odwołania przetargu z uzasadnionej przyczyny. Burmistrz Kamienia Krajeńskiego zastrzega sobie prawo do wprowadzenia zmian w ogłoszeniu o przetargu oraz unieważnienia przetargu, w szczególności zaistnienia okoliczności, które uniemożliwiają zawarcie ważnej umowy. Organizator przetargu nie zwraca jakichkolwiek poniesionych kosztów, bez względu na sposób rozstrzygnięcia przetargu.
-
- Nr przetargu B.7150.2.2021
Załączniki
| załącznik nr 1 | dodany: 09:14, 15.04.2021 | przez: Marta Husarek |
Informacje
| wytworzono: | data: 09:08 15.04.2021 | przez: Marta Husarek | |
| wprowadzono: | data: 09:14, 15.04.2021 | przez: Marta Husarek | |
| udostępniono: | data: 09:14, 15.04.2021 | przez: Marta Husarek | |
| zmodyfikowano: | data: 09:14, 15.04.2021 | przez: Marta Husarek | |
| osoba odpowiedzialna: | Marta Husarek | ||
| podmiot udostępniający: | Urząd Miejski w Kamieniu Krajeńskim | ||
Rejestr zmian
| utworzono: | data: 09:14, 15.04.2021 | przez: Marta Husarek | ogłoszenie o I przetargu ustnym nieograniczonym na dzierżawę lokalu użytkowego. |
