Ogłoszenie o I przetargu ustnym nieograniczonym na dzierżawę lokalu użytkowego w Kamieniu Krajeńskim ul. Jeziorna

Burmistrz Kamienia Krajeńskiego ogłasza I przetarg ustny nieograniczony na dzierżawę
Lp. Położenie Oznaczenie nieruchomości Powierzchnia lokalu Przeznaczenie i sposób zagospodarowania Cena wywoławcza Termin wnoszenia opłat Wadium Forma użytkowania
Nr  KW Nr działki Nr obrębu
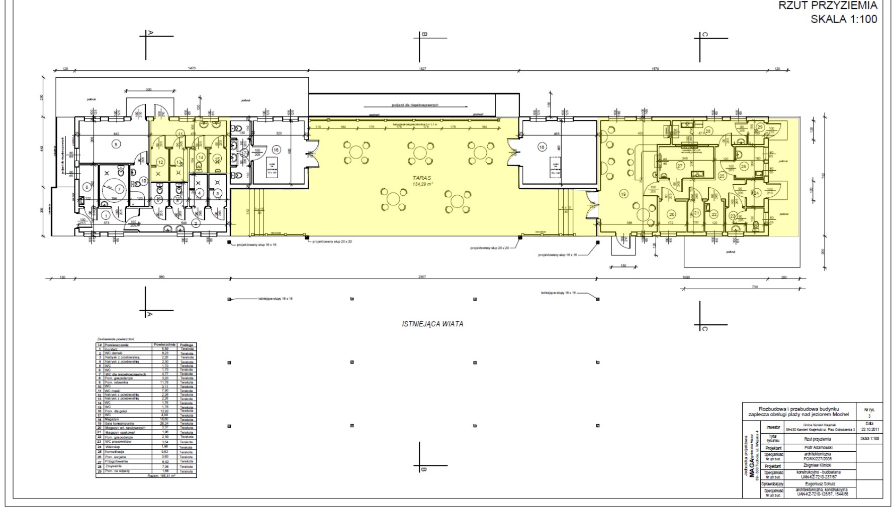
1.         Kamień Krajeński ul. Jeziorna BY2T/00015751/8 1/34 0001 218,47 m2 Część budynku amfiteatru z przeznaczeniem na usługi gastronomiczne 1 000,00 zł + VAT Do 10-go każdego miesiąca 615,00 Dzierżawa Na 3 lata
Przedmiotem przetargu jest dzierżawa lokalu użytkowego składającego się z pomieszczeń usytuowanych na parterze budynku, oznaczonych nr 11-15, 19-29 oraz jako taras – zgodnie z załącznikiem graficznym. Budynek wyposażony w instalację: elektryczną, wodno-kanalizacyjną, wentylacja mechaniczna, internet – ogólnodostępny. Ogrzewanie – brak. Lokal przeznaczony do prowadzenia całorocznych usług gastronomicznych/gastronomicznych i rozrywkowych - minimum 5 razy w tygodniu w okresie od 1 maja do 31 sierpnia oraz minimum 2 razy w tygodniu w pozostałych miesiącach, z zastrzeżeniem obowiązku prowadzenia usług w dniach imprez plenerowych nad j. Mochel organizowanych przez jednostki gminne. Przetarg odbędzie się 17 lutego 2020 roku o godz. 1000 w Urzędzie Miejskim w Kamieniu Krajeńskim w sali nr 28 (II piętro). Wadium  należy wpłacić w pieniądzu na konto Urzędu Miejskiego Nr 30 8162 0003 0000 9292 2000 0180  Bank Spółdzielczy Więcbork najpóźniej do dnia 13 lutego 2020 roku (włącznie).  Uczestnictwo w przetargu uwarunkowane jest:
  • wpłatą i przedłożeniem Komisji Przetargowej dowodu wpłaty wadium w pieniądzu. Za termin wpłaty wadium uznaje się dzień wpływu środków pieniężnych na konto Urzędu;
  • nie zaleganiem z opłatami na rzecz Gminy Kamień Krajeński z tytułu korzystania z nieruchomości gminnych, w tym podatku od nieruchomości, potwierdzonym zaświadczeniem z Urzędu miejskiego lub Zakładu Gospodarki Komunalnej i Mieszkaniowej w Kamieniu Krajeńskim Sp. z o.o..
Szczegółowych informacji można uzyskać w Urzędzie Miejskim w Kamieniu Krajeńskim (pokój nr 24, II piętro) lub telefonicznie pod numerem (52) 389-45-32 w godzinach urzędowania. Wpłacone wadium przez uczestnika, który wygra przetarg zalicza się na poczet pierwszego czynszu za dzierżawę. Pozostałym uczestnikom przetargu wadium zwraca się niezwłocznie jednak nie później niż przed upływem 3 dni od dnia zakończenia przetargu, na podany przez uczestnika rachunek bankowy. W przypadku uchylenia się przez uczestnika, który wygrał przetarg od zawarcia umowy dzierżawy, wpłacone przez niego wadium przepada. Ogłoszenie niniejsze wywieszone zostaje  na tablicy ogłoszeń w budynku Urzędu Miejskiego w Kamieniu Krajeńskim. oraz zamieszczone na stronie internetowej:  https://mst-kamien-krajenski.rbip.mojregion.info/ i opublikowane w prasie o zasięgu co najmniej powiatu sępoleńskiego. Burmistrz Kamienia Krajeńskiego zastrzega sobie prawo do odwołania przetargu z uzasadnionej przyczyny.    

Załączniki

Dodaj komentarz

Twój adres e-mail nie zostanie opublikowany. Pola, których wypełnienie jest wymagane, są oznaczone symbolem *

Możesz użyć następujących tagów oraz atrybutów HTML-a: <a href="" title=""> <abbr title=""> <acronym title=""> <b> <blockquote cite=""> <cite> <code> <del datetime=""> <em> <i> <q cite=""> <s> <strike> <strong>